愛知県豊橋市牛川通5丁目
豊橋鉄道東田本線「井原」駅 徒歩32分
豊橋鉄道東田本線「東田」駅 徒歩34分
豊橋鉄道東田本線「競輪場前」駅 徒歩34分
外観全体図です。ダークトーンの外壁にブラウン系アクセントを組み合わせた、洗練されたモダンデザイン。重厚感と高級感を兼ね備えた佇まいが、街並みに映える存在感ある外観です。

外観全体図です。ダークトーンの外壁にブラウン系アクセントを組み合わせた、洗練されたモダンデザイン。重厚感と高級感を兼ね備えた佇まいが、街並みに映える存在感ある外観です。

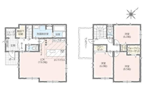
約19帖LDKに折り下げ天井でリビングを格上げ。主寝室8.5帖+洋室6帖×2の4LDK、ウォークインクローゼット付きで収納も充実。

駐車並列3台可能です(車種による)
※現況と相違ある場合、現況を優先します。
愛知県豊橋市牛川通5丁目
豊橋鉄道東田本線「井原」駅 徒歩32分
豊橋鉄道東田本線「東田」駅 徒歩34分
豊橋鉄道東田本線「競輪場前」駅 徒歩34分
| 建物現況 | 新築 |
|---|---|
| 建物構造 | 木造 |
| 階建 | 2階建 |
| 間取り | 3LDK(1F:LDK19帖 2F:洋8.5帖 2F:洋6帖 2F:洋6帖) |
| 築年月 | 2026年2月 |
| 建物面積 | 登記:109.97m2(33.26坪) |
| 土地面積 | 公簿:141.84m2(42.9坪) |
| 地目/地勢 | 宅地/- |
| 建ぺい率/容積率 | 60%/200% |
| 土地権利 | 所有権 |
| 借地期間 | - |
| 権利金/保証金 | -/- |
| 都市計画 | 市街化区域 |
| 用途地域 | 第一種住居地域 |
| 駐車場 | 有(3台可) |
|---|---|
| 接道状況 | 二方 角地(西北:公道 幅員4.8m、南西:公道 幅員5m) |
| セットバック | - |
| 私道有無 | 無 |
| 国土法届出 | 不要 |
| 手付金保証 | - |
| フラット利用 | - |
| 建築確認番号 | 第R07確認建築CI東海A70342号他 |
| 学校区 |
牛川小学校(1400m) 青陵中学校(1700m) |
| 法令に基づく その他制限 |
- |
| 備考 | 牛川小学校青陵中学校 |
| 取引態様 | 仲介 |
| 引渡時期 | 相談 |
| 問い合せ番号 | 155501-2250 |
| 物件更新日 | 2026年4月27日 |
2026年5月11日
小学校 豊橋市立牛川小学校(1400m)

中学校 豊橋市立東陵中学校(1700m)

コンビニ ローソン豊橋牛川通店(180m)

スーパー フードマーケットMom牛川店(680m)

ドラッグストア ウエルシア豊橋東森岡店(530m)

郵便局 豊橋牛川郵便局(860m)

公園 半ノ木公園(1070m)

ショッピング施設 ファッションセンターしまむら西小鷹野店(1460m)

銀行 豊川信用金庫牛川支店(770m)


内藤 高光
お問い合わせ番号をお伝えいただくとスムーズです。
この物件のお問い合わせ番号は【155501-2250】です。

豊橋牛川通Ⅱ 1号棟
愛知県豊橋市牛川通5丁目
4LDK(125.02m2/139.87m2)
3,880万円

豊橋牛川通Ⅱ 2号棟
愛知県豊橋市牛川通5丁目
3LDK(109.97m2/141.84m2)
3,780万円

豊橋牛川通Ⅱ 4号棟
愛知県豊橋市牛川通5丁目
4LDK(130.59m2/153.41m2)
3,980万円

豊川市赤坂町東山
愛知県豊川市赤坂町東山
4LDK(121.7m2/191.91m2)
1,850万円

豊橋市吉川町第1期 1号棟
愛知県豊橋市吉川町
5LDK(106m2/142.09m2)
3,180万円

豊橋市吉川町第1期 2号棟
愛知県豊橋市吉川町
4LDK(101.03m2/182.65m2)
2,980万円

豊橋市吉川町第1期 3号棟
愛知県豊橋市吉川町
5LDK(106.01m2/106.01m2)
2,880万円

豊橋市馬見塚町59期 1号棟
愛知県豊橋市馬見塚町
4LDK(105.39m2/162.57m2)
2,730万円

豊橋市馬見塚町59期 2号棟
愛知県豊橋市馬見塚町
5LDK(106.21m2/178.84m2)
2,780万円

豊橋市馬見塚町59期 3号棟
愛知県豊橋市馬見塚町
5LDK(106m2/196.35m2)
2,680万円

豊橋市馬見塚町59期 5号棟
愛知県豊橋市馬見塚町
4LDK(106.21m2/178.84m2)
2,980万円

豊川市諏訪西町59期 3号棟
愛知県豊川市諏訪西町1丁目
4LDK(105.8m2/116.79m2)
2,930万円

豊川市諏訪西町59期 2号棟
愛知県豊川市諏訪西町1丁目
4LDK(105.18m2/122.79m2)
3,030万円

豊川市諏訪西町59期 1号棟
愛知県豊川市諏訪西町1丁目
4LDK(105.6m2/123.87m2)
3,130万円

豊橋東脇4丁目第1期 2号棟
愛知県豊橋市東脇4丁目
4LDK(108.08m2/147.36m2)
3,080万円

豊川赤坂町第1期 1号棟
愛知県豊川市赤坂町御園
5LDK(105.39m2/169.18m2)
3,170万円

豊橋草間町第1期 3号棟
愛知県豊橋市草間町字東郷
5LDK(106m2/168.92m2)
3,370万円

豊橋草間町第1期 2号棟
愛知県豊橋市草間町字東郷
4LDK(101.04m2/146.86m2)
3,270万円

豊川市長沢町大覚
愛知県豊川市長沢町大覚
4LDK(118.41m2/200.41m2)
1,599万円

豊川幸町第2期 3号棟
愛知県豊川市幸町
5LDK(106.01m2/158.33m2)
2,980万円

豊橋市忠興1丁目
愛知県豊橋市忠興1丁目
4LDK(109.3m2/137.28m2)
2,050万円

豊川幸町第2期 1号棟
愛知県豊川市幸町
5LDK(105.8m2/139.76m2)
3,270万円

豊橋第27二川町
愛知県豊橋市二川町字東町
4LDK(96.06m2/235.28m2)
3,380万円

豊川市赤坂台第1期 2号棟
愛知県豊川市赤坂台
5LDK(105.18m2/172.47m2)
2,780万円

豊橋富士見台第3期 1号棟
愛知県豊橋市富士見台4丁目
5LDK(111.81m2/136.39m2)
2,880万円

豊川伊奈町佐脇原第2期 2号棟
愛知県豊川市伊奈町佐脇原
5LDK(106m2/174.5m2)
2,880万円

豊橋市曙町字松並 3号棟
愛知県豊橋市曙町字松並
5LDK(105.18m2/210.02m2)
3,780万円

豊橋市曙町字松並 4号棟
愛知県豊橋市曙町字松並
4SLDK(100.62m2/152.78m2)
3,480万円

豊橋市高師町59-2期 1号棟
愛知県豊橋市高師町字西沢
4LDK(100.83m2/127.54m2)
3,480万円

豊橋市旭町59期 全1棟
愛知県豊橋市旭町字旭
4LDK(101.04m2/113.87m2)
2,970万円
物件価格にて、消費税がかかる場合は税込み価格を表示しています。